现在时间: English
盘式干燥机、桨叶干燥机-常州市中通干燥设备有限公司官方网站!
新闻中心   首页 > 新闻中心 > 公司新闻    
联系方法

   联系人:臧先生
   手  机:13961429222
        18118029222

    微  信:13961429222

   Q    Q:548729222
   电  话:0519-88900108
   传  真:0519-88906686
   E-mail:sale@ztdry.com

                548729222@qq.com
   地址:常州市郑陆镇镇南路5号

 

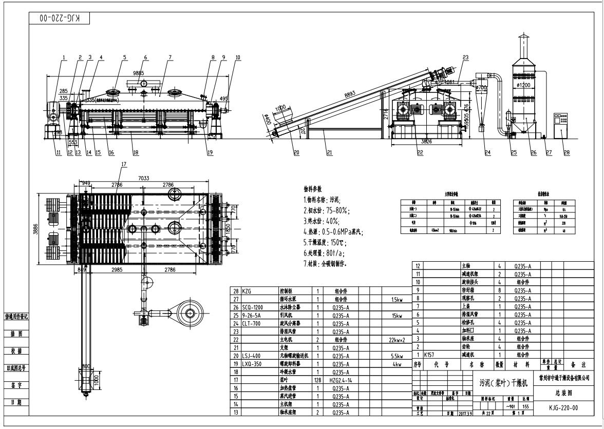
80T/d污泥减量干化方案

Datetime:2017-08-02 10:07:16   Hits:2245

 

一、产品介绍

                             

  I、工作原理

  空心轴上密集排列着楔型中空桨叶,热介质经空心轴流经桨叶,单位有效容积内传热面积很大。传热介质通过旋转接头,流经壳体夹套及空心搅拌轴,空心搅拌轴依据热介质的类型而具有不同的内部结构,以保证最佳的传热效果。

在桨叶及夹套通入蒸汽加热的同时,出料口上部同时通入经过加热后的干热空气进一步干燥,这样大大增加了设备的干燥强度。蒸发出来的水份由尾气带出干燥机,经过旋风分离器过滤,将干燥后的细粉回收下来,湿空气由引风机排出室外

                                    

II、设备特性:

² 桨叶干燥机能耗低:由于间接加热,没有大量携带空气带走热量,干燥器外壁又设置保温层,故热损失很小。

² 桨叶干燥机系统造价低:单位有效容积内拥有巨大的传热面,就缩短了处理时间。设备尺寸变小,减少了占地面积。

² 处理物料范围广:使用不同热介质,既可处理热敏性物料,又可处理需高温处理的物料。

² 环境污染小:携带空气量很少,粉尘物料夹带很少。

² 操作费用低。

² 操作稳定:由于楔型桨叶特殊的压缩-膨胀搅拌作用,使物料颗粒充分与传热面积接触,在轴向区间内,物料的温度、湿度、混度及梯度都很小,从而保证了工艺的稳定性。

                                                                          

二、物料参数及选型

I、物料参数

 1、物料:污泥

 2、含水7580%

 3、终含水份:40%

 4、进料量:80t/d

 5、热源:0.50.6MPa蒸汽

 6、干燥温度:150 

 7、材质:碳钢制作

II、设计计算过程

 1、进料量:3.334t/h

 2、水份蒸发量:20522223kgH2O/h

 3、蒸汽耗量:26682890kg/h

 4、装机功率:70kw

 5、设备选型及参数

 5.1根据物料干燥要求,采用0.5MPa(151)蒸汽压力,空心平均蒸发量910kgH2O/m2,需选用一台KJG-220四轴空心桨叶干燥机设计物料干燥停留时间140160min。减速机选用KA157-37kw-4,速比9.7RPM。

湿空气排量:6000m3/h,引风机选用9-26-5A/15kw。

 5.2一级旋风分离器选用CLT-700。

 5.3二级水沐除尘器选用SCQ-1200。

 5.4螺旋输送机采用无轴形,Φ400mm/5.5kw。

三、设备参数及供货范围

一)设备参数:

说明:KJG-220桨叶干燥机采用旋风分离器收集尾气带走粉尘及部分冷凝水,尾气采用水沐式除尘器处理。

1.无轴螺旋输送机Q235/5.5kw,L=9m

2. 进风管:Q235/2组

3.干燥主机:

3.1型号:KJG-220

3.2传热面积:220m2

3.3工作容积:11m3

3.4主机转速:5-9rpm

3.5传动电机功率:22kw-4/2台,变频调速

     减速机:KA157/9.7R.P.M

3.6主机上箱体: Q235/δ=3mm

3.7主机下箱体内壁:Q235/δ=14mm

3.8主机下箱体导流管:A3/δ=12mm

3.9保温:岩棉/304/铆钉形式

3.10法兰:A3/δ40mm      2件

3.11端盖板:A3/δ40mm   2件

3.12填料座:8  45钢   (填料: 20x20四氟盘根)

3.13填料压盖:8  A3

3.14空心浆叶主轴:2件  A3φ426x25

3.15回流管:φ133x20 A3

3.16叶片:1套   Q235/12mm  

3.17下料口:1件   400x2900

    螺旋输送下料器:1件  Q235350  4kw

    溢流板:  1件   10mm  Q235

3.18减速机:K157 1件  

3.19传动齿轮:4

3.20旋转接头:2件

3.21轴承座:8   A3焊接件

3.22主机支架:1件([25#槽钢/喷防锈柒

3.23主机箱内尺寸: 见图纸   

3.24主机外形尺寸:见图纸

3.25排风总管:Q235=3mm/1件

3. 26旋风分离器CLT-700

     材质:Q235=3mm

3. 27水沐除尘器:SCQ-1200/1件

     材质:Q235=4mm

3. 28引风机:9-26-5A/15kw

     材质:Q235-A

3. 29排湿风管及烟囱:Q235/δ=2mm/各1件

3. 30控制柜:电器元件1套/变频1台

4、其他资料:

  随机软件资料1套、产品合格证书、电器原理图、设备使用说明书。

5、KJG-220桨叶干燥机主要设备清单

序 号

名    称

数 量

材 质

备   注

1

螺旋输送机

1台

Q235-A

5.5kw

2

桨叶主轴

4

Q235-A

Ф426*25

3

桨叶片

4

Q235-A

δ=12mm

4

主机下箱体

1

Q235-A

δ=14mm

5

加热盘管

1套

Q235-A

δ=12mm

6

主机上箱体

1件

Q235-A

δ=3mm

7

主机保温

1件

304

拉铆钉

8

溢流板

1套

Q235-A

δ=10mm

9

螺旋输送下料器

1台

Q235-A

4kw

10

填料座

8

组合件

11

填料压盖

8

组合件

12

轴承座

8

组合件

13

齿  轮

4

45#

14

减速机

2

KA157/9.7

江苏国茂

15

主电机

2台

组合件

16

减速机座

1件

Q235-A

17

旋转接头

2件

组合件

18

金属软管

4件

组合件

19

排风总管

1件

Q235-A

20

旋风分离器

1件

Q235-A=3mm

LCT-700

21

水沐除尘

1件

Q235-A=3mm

SCQ-1200

22

循环水泵

1台

组合件

23

  

各1件

Q235-A

24

引风机

1台

Q235-A

9-26-5A/15kw

25

控制柜

1台

喷塑柜

26

低压电器

1套

组合件

中国正泰

27

变频器

2

22kw

深圳伟创

28

辅助材料

1批

焊条、螺丝、密封件等

1、电柜至所有电机间连接电缆需方自备;

2、所有电机均采用江阴大中;

3、减速机采用江苏国茂;

4、变频器采用苏州台达产品;

5、旋转接头选用福建闵旋产品;

6、板材采用太钢或张产品;

7、槽钢采用马钢产品。

51年备品备件清单

序号

名  称

型号和规格

单位

数量

价格(元)

备注

1

管道法兰垫圈

40*4

1

硅 胶

2

热电偶

PT100

3

组 件

3

旋转接头石墨环

1寸半

4

组 件

4

  

M18*100

30

组 件

四、需方义务

1.供电条件:电缆接至供方电控柜内,并提供电机间连接电缆;

2.供料要求: 物料输送至供方设备;

3.供热条件:热源接送至供方设备热源进口管道;

4.整套设备部件及材料运抵施工现场后由需方免费负责卸货并妥善保管,若丢失由需方负责;

5.供方工程师进入施工现场指导需方工人作业时,需方免费负责提供吊装、安装设施并配备5名工作人员配合现场作业,并听从供方人员指挥;

6.需方免费提供供方工作人员工作场所,并满足工作所需的各种条件。

7.按供方图纸要求在设备进场前完成地面水泥基础。

六、资料交付

1、合同签订一周内设计并交付电子版设备基础、布置图纸;

2、合同签订生效后,供方组织生产制作。发货时随机向需方提供下列书面文本:

1) 配套电机及减速机合格证、使用说明书1份;

2) 风机合格证、使用说明书1份;

3) 旋转接头合格证、使用说明书1份;

4) 所有电器元件合格证及电器原理图1份;

5) 电子版设备图纸一份。

七、安装调试和售后服务

1、空心桨叶干燥机组相关部件运达甲方施工现场后,需方应妥善保管。供方接到需方具备施工条件通知,于48小时内派2名技术人员到达现场,指导需方工人进行安装作业,相关工作力争在10日内完成。需方免费提供吊装设备、水、电、气及施工场地。

2、需方在设备具备带料试车条件后,电话通知供方。供方接到通知后于48小时内派工程师1名到达现场指导需方工作人员进行设备试生产运行,调试工作在5日内完成,并对需方操作工人进行操作培训,直至能够独立操作使用。此时为正式交付需方生产使用。

3、质量保证期:

   1)质量保证期为设备投入正常使用后12个月。

   2)质量保证期后,继续向用户提供及时、优质、价格优惠的技术服务和备品备件及易损件的供应。

   3)建立设备出厂档案,派员定期电话回访,免费提供技术支持。

常州市中通干燥设备有限公司  

总经理:臧 正 先生  

  机:13961429222 18118029222  

 话:0519-88900108 88900208  

 真:0519-88906686  

http://www.ztdry.com  

E-mail:sale@ztdry.com  

    548729222@qq.com 


咨询热线:13961429222  18118029222
服务热线:0519-88900108 88900208
传  真:0519-88906686
邮箱:sale@ztdry.com
网址:www.ztdry.com
地址:常州市郑陆镇镇南路5号


Copyright ©2016  常州市中通干燥设备有限公司  版权声明  苏ICP备11008861号-1  版权所有:中通干燥  [后台管理]

  • 咨询热线(TEL)
  • 13961429222
  • 销售微信号